光安6区域再开发项目修缮计划决定及修缮区域指定(案)居民公览及居民说明会召开公告
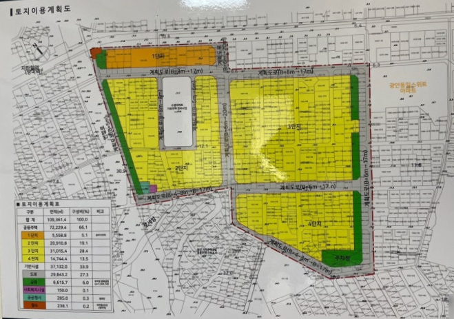
- 水营区光安洞1057-2号地块,光安里再开发推进现状,区域图

釜山水营区政府宣布,将于2025年11月12日举行关于『光安6区域再开发项目修缮计划决定及修缮区域指定(案)』的居民公览及说明会。
公览期为11月14日至12月15日,居民说明会将于11月26日上午10点在水营区政府2楼国民厅召开。期待居民的积极参与。

该开发项目位于水营区光安洞1057-2号地块,总面积达109,470㎡。该地区将开发成约2180户的大型公寓小区,预计有约1300名业主。
计划建设15栋地下3层至地上39层的公寓,容积率为295%,建筑占地率设定为19%。这些数字将能有效利用土地。

项目所在地具有优越的地理条件。釜山地铁2号线水营站和3号线望美站近在咫尺,具备双重轨道交通的优点。
此外,水营路、延水路、繁荣路、光安大桥等主要道路的交通便利,使前往海云台、Centum、中心城区非常方便。
周边有水营小学、光安中学、德文女高等教育机构,教育环境优越,同时还拥有CostCo、八道市场、水营交叉路口商业区等多种生活基础设施。

如果光安洞的再开发顺利进行,预计与邻近的光安A区域(约2550户)和光安Centum Vista(525户)共同形成总计5000户的新居住区。
这样形成的大型公寓小区在水营区内也是较为罕见的案例,位置优越,可同时接近光安里和Centum生活圈,引起了很多关注。

光安6区域已于2024年3月通过了事前可行性审查审核。并于同年5月完成了修缮计划的立案及修缮区域指定申请。这次进行的公览公告是修缮区域指定公告的最后阶段,预计在2026年上半年将进行光安6区域的修缮区域指定公告。之后将进行协会成立和施工公司的选定程序。

光安6区域附近的小型股份型房地产交易价格目前在1亿2000万到1亿5000万之间。该地区被认为是光安洞再开发区域中相对容易接近且商业潜力卓越的地方。
关于光安洞再开发项目的详细信息可以在下面的帖子中查看。
釜山广域市水营区公告第2025-1287号
光安6区域再开发项目
修缮计划决定及修缮区域指定(案)
居民公览及居民说明会召开公告
釜山广域市水营区光安洞1057-2号地块“光安6区域再开发项目”修缮计划决定及修缮区域指定(案),根据《城市及居住环境修缮法》第15条及同法实施令第13条,为了听取土地等所有者和利益相关者的意见,将举行居民公览及居民说明会,如有意见请在公览期间向水营区政府建筑科书面提交。
2025年11月12日
釜山广域市水营区区长
Ⅰ. 公览·公告目的
为了听取对釜山广域市水营区光安洞1057-2号地块『光安6区域再开发项目修缮计划决定及修缮区域指定(案)』的居民及利益相关者的意见
Ⅱ. 居民公览及居民说明会概况
1. 居民公览
① 公览期:2025. 11. 14.(五) ~ 2025. 12. 15.(一)(自公告日起30天以上)
② 公览地址:釜山广域市水营区政府建筑科 [☎051-610-4664]
(暂称)光安6区域再开发项目推进准备委员会办公室 [☎051-752-8283]
③ 公览内容
1) 修缮区域指定报告
| 指定分类 | 项目分类 | 区域名称 | 位置 | 面积(㎡) | 备注 |
| 新建 | 再开发项目 | 光安6再开发修缮区域 | 水营区光安洞1057-2号地块 | 109,470 |
2) 修缮计划(案):
请参考公览资料
④ 公览资料:略去刊登(公览地点有备存)
⑤ 意见提交方法:公览期间内向水营区政府建筑科书面提交
2. 居民说明会
① 日 期:2025. 11. 26.(三) 10:00
② 地 点:水营区政府国民厅(2楼)
③ 内容:关于修缮计划决定及修缮区域指定(案)的说明


分类
公告
机构分类
区县
机构
水营区
公告·公告编号
第2025-1287号
标题
光安6区域再开发项目修缮计划决定及修缮区域指定(案)居民公览及居民说明会召开公告
日期
2025-11-12
#光安6区域, #光安6再开发, #水营区再开发, #光安洞再开发, #釜山再开发, #修缮区域指定, #修缮计划决定, #居民公览, #居民说明会, #水营站, #望美站, #双重铁路区域, #2180户, #大型公寓, #优质教育, #水营小学, #光安中学, #德文女高, #八道市场, #CostCo, #Centum生活圈, #光安里生活圈, #实际居住位置, #项目潜力良好, #协会成立, #施工公司选择, #水营区政府公告, #城市与居住环境修缮法, #光安A区域, #光安Centum Vista
常见问题(FAQ)
问. 光安6区域再开发项目居民公览及居民说明会什么时候在哪里进行?
公览期为11月14日至12月15日,居民说明会将在11月26日上午10点于水营区政府2楼国民厅举行。
与光安6区域再开发项目相关的居民公览将于2025年11月14日至12月15日进行,持续约一个月。在此期间,居民和利益相关者可以在水营区政府建筑科与推进准备委员会办公室查阅修缮计划(案)及修缮区域指定报告。此外,居民说明会将于2025年11月26日星期三上午10点在水营区政府2层国民厅举行,提供关于项目的详细说明并设置互动环节。
问. 光安6区域再开发项目的主要规模和计划是什么?
总面积为10万9470㎡,计划建设15栋地下3层至地上39层的公寓2180户。
光安6区域再开发项目将在釜山水营区光安洞1057-2号地块上进行,预计将建设约2180户的大型公寓小区,预期约有1300名业主。公寓规划为15栋,从地下3层到39层,共设立,容积率295%,建筑占地率19%,有效提升土地利用率。因此,预计居住环境和空间利用将得到优化。
问. 光安6区域再开发地区的交通和基础设施环境怎样?
该地处于光安地铁2号线水营站和3号线望美站的双重轨道交通区域,且附近有主要道路和教育、商业设施。
该地区的地理条件出色,地铁2号线水营站和3号线望美站近在咫尺,具备双重轨道交通的优势。此外,水营路、延水路、繁荣路和光安大桥等主要道路的交通便捷,使得前往海云台、Centum和市中心非常方便。此外,该区教育资源优质,附近有水营小学、光安中学、德文女高等学校,同时生活基础设施也非常齐全,如CostCo、八道市场、水营交叉路商业区等。
问. 光安6区域再开发项目的后续程序和时间表如何?
预计于2024年3月通过事前可行性审查后于2026年上半年进行修缮区域指定公告。
光安6区域于2024年3月条件性通过事前可行性审查,5月完成了修缮计划立案及修缮区域指定申请。目前进行的居民公览及居民说明会是修缮区域指定公告的最后阶段。预计在2026年上半年将进行修缮区域指定公告,之后将进行协会成立及施工公司选定等项目推进程序。
问. 光安6区域周边房地产市场价格及商业潜力如何?
小型权益型房地产的交易价格约在1亿2000万至1亿5000万,商业潜力良好。
光安6区域附近小型权益型房地产的交易价格在1亿2000万到1亿5000万之间,该地区被认为是光安洞再开发项目中相对容易接近且商业潜力不错的地区。尤其是优秀的地理位置、交通条件、周边生活基础设施、教育资源等综合因素,使得该地区在未来开发后预计拥有较高的居住价值。


